House for II is a private project.
House for II is a home and creative space based on a healthy and collaborative lifestyle.

This home is not "sustainable".
I don't want this project that's been in the works for years to be called anything close to sustainable. Why? Because society's used and abused that word way too much for it to hold its true value anymore.
So here we go, I look at this to be the new normal. Research, sweat and passion have gone into this. It's nothing to take credit for. I've just enjoyed formulating the new foundation for every new architectural project I create.




This project is called House for II. This is a home. Where you are safe from the impurities this world has created. I've put this together because it's about time. You may see the design as simple, but that can change don't worry, it's the fundamentals that matter.

It's unfortunate how society has fought hard to make toxic materials and businesses the most affordable and mainstream. I don't want to waste your time so let's just say building from concrete and a bunch of its complimentary materials is toxic, not just for the builders but also when living within it.

House for II is constructed using hempcrete, externally rendered using a lime-based render (protecting the wall from harsh weather whilst still allowing the wall to be breathable) and is internally rendered using a clay render (that easily holds and transmits moisture).

Hempcrete is nothing new, it's been used for thousands of years but unfortunately false theories have been made over time to knock it out of the market.
Building from Hempcrete reduces carbon dioxide emissions, reduces the use of petrochemicals, reduces the need for maintenance, consumes less energy, has a carbon neutral construction, is non-toxic (pre and post build) and overall absorbs carbon dioxide.
LIME BINDER + HEMP HURDS + WATER = HEMPCRETE
Oh, and lime binder is anti-microbial & anti-fungal.
You may be thinking about the cost. Whilst it may be 5-10% more expensive than concrete/toxic materials, I truly believe if we focus our innovation and efforts in normalizing hempcrete, its' prices will surely beat concrete.

Moving on from the fundamentals of building, House for II is a home and creative space based on a healthy and collaborative lifestyle.


I wanted to create an open space to bring forth a collaborative mindset to share with others.
And most importantly, I wanted to bring forth the teaching of cultivating your own organic and indoor grown veggies and fruits by bringing nature right inside.

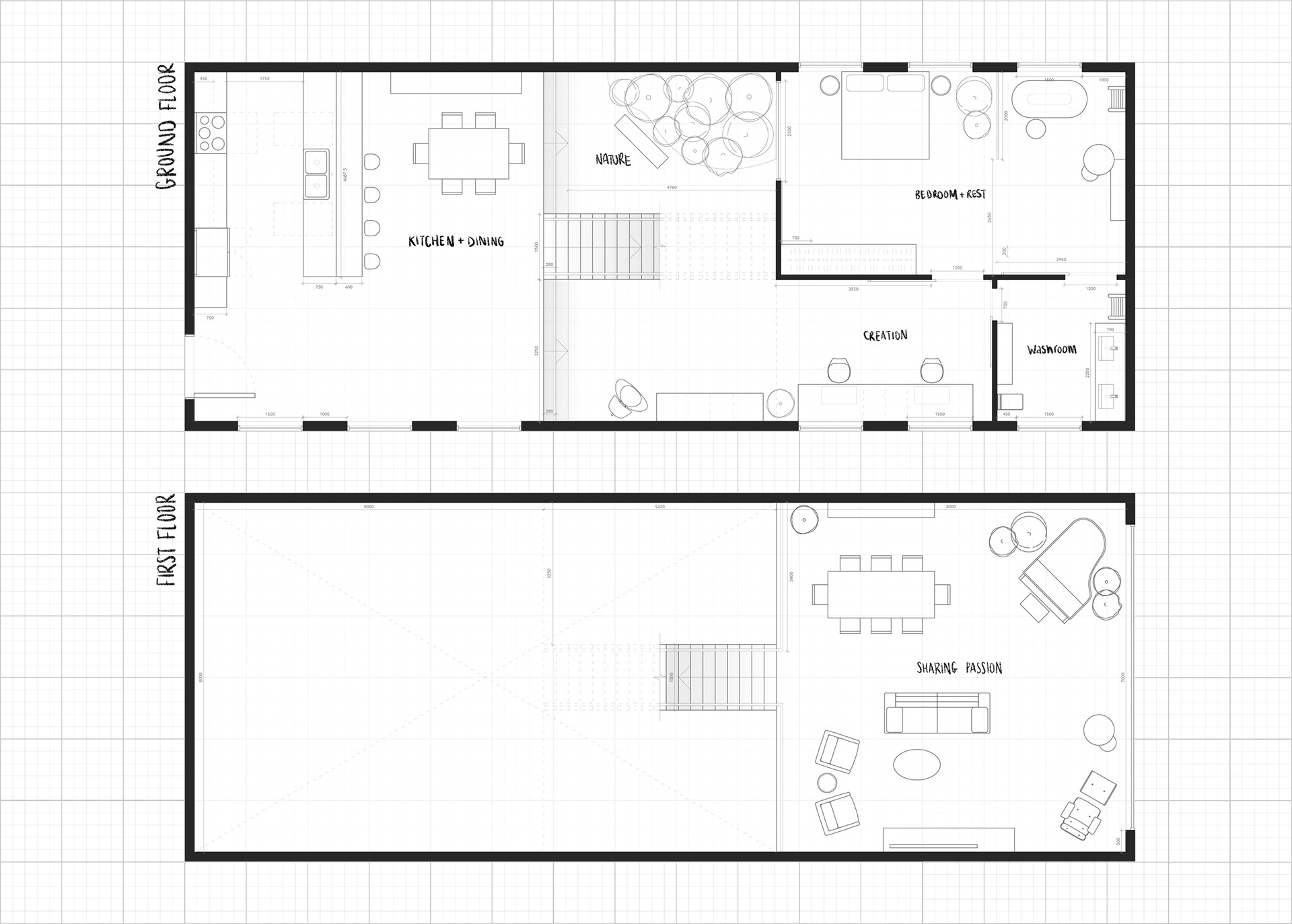
House for II has a simple structure of modernized traditional forms of spaces where a large crowd can regularly meet.

House for II's lower floor is comprised of the necessities: bedroom, washroom, kitchen, a space for personal creation and cultivation of veggies/fruits (nature). The upper floor is an investment into others; it's the social investment we were created to share. It's comprised of a work station, music space and living area.
There's a fine line between feeling trapped and privacy.
The circulation within the home is open, free and allows natural light in.

I think it's time to prioritize our wellbeing and not how high we can build skyscrapers.
